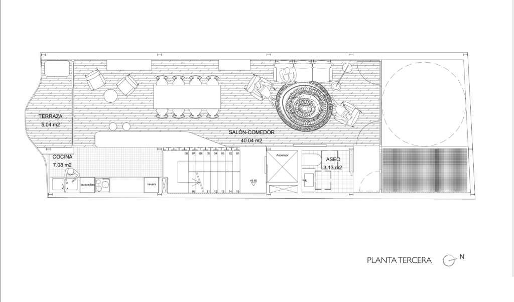
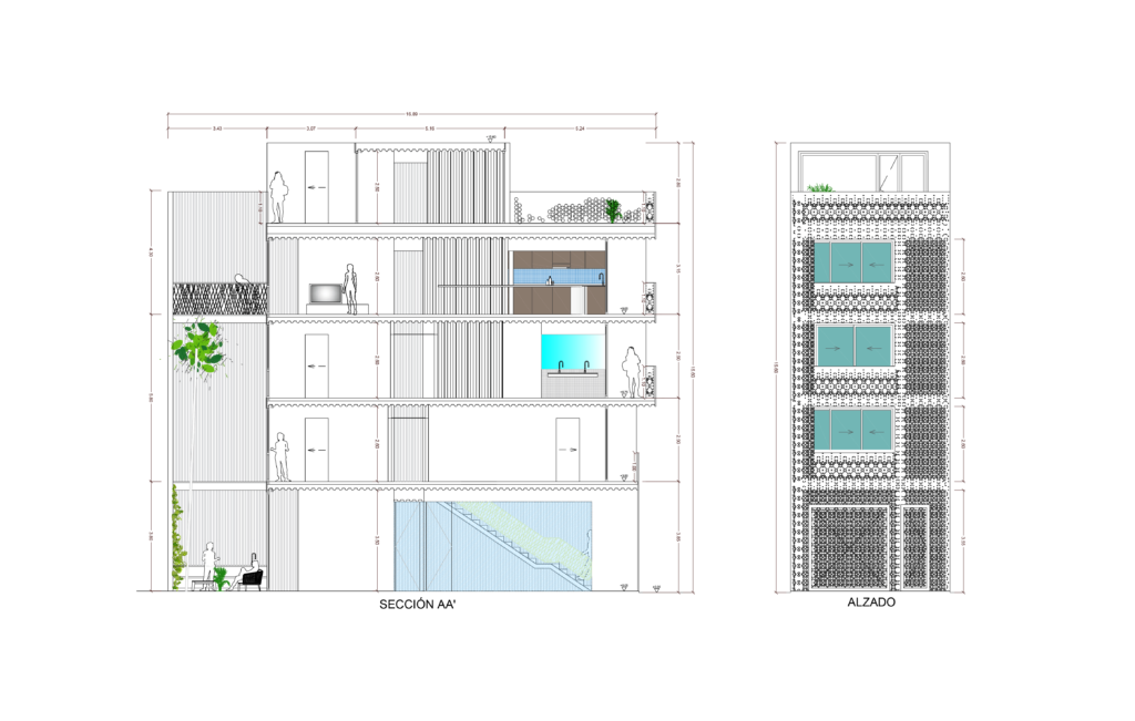
Arquitectura / Vivienda / VIVIENDA UNIFAMILIAR EN SANTA POLA
VIVIENDA UNIFAMILIAR EN SANTA POLA
Santa Pola , 2018 Leer más- Arquitectos:
Antonio Maciá Mateu
Ana Mora Vitoria - Aparejador: Francisco Rodríguez Navarro
- Constructor : Corquintin
- Colaborador: David Martínez Rodríguez










